|
Оферта №16056, Цена: 136965 EUR Двустаен, София, Красна Поляна, 60 кв.м, ет. 4/8, Тухла
|
|
|
Площ 60 м2, Етаж: 4 от 8
Строителство : Тухла
Отопление : Газ
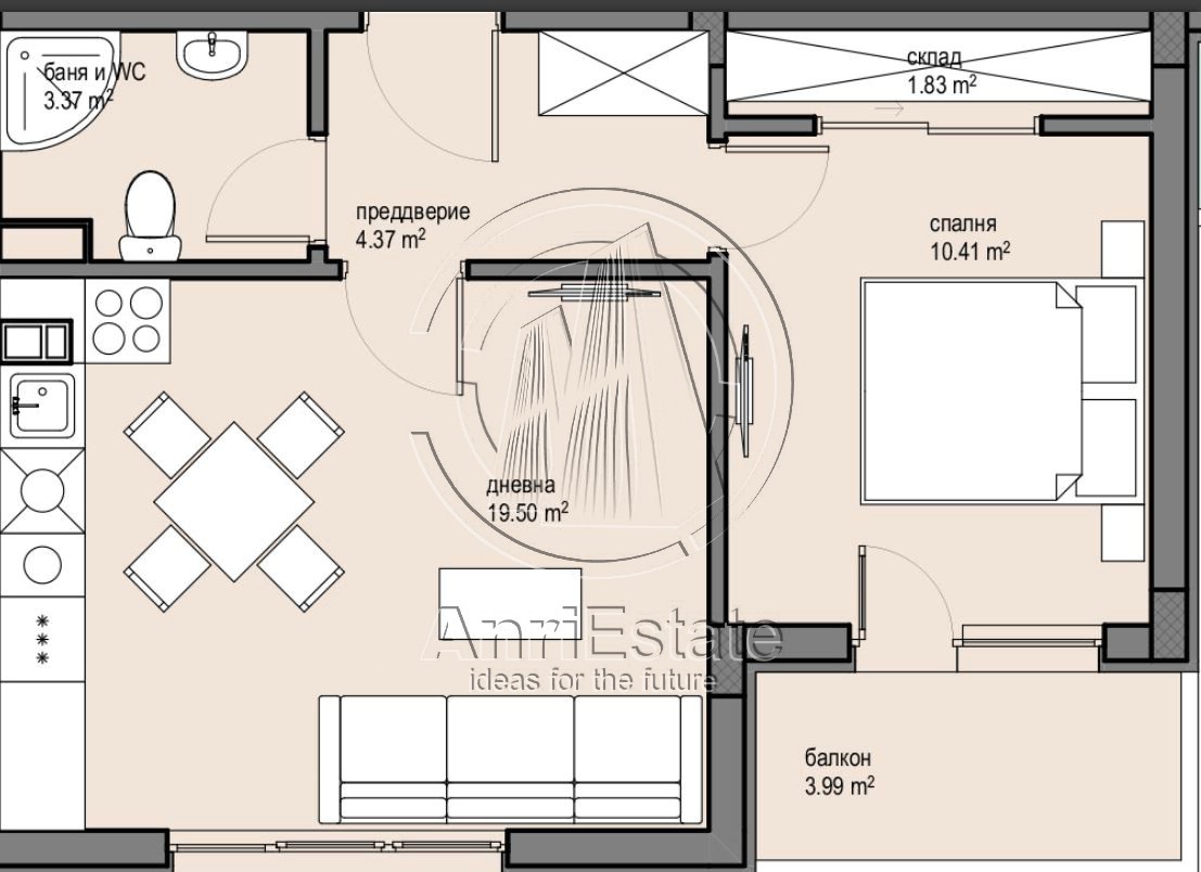
Агенция АНРИ прeдлага двустаен апартамент в новострояща се гухлена сграда. АКТ 14. Луксозни общи части, асансьор.Доказан строител. МЕСТОПОЛОЖЕНИЕ: Намира се до спирки на градския транспорт, детска градина, училище. РАЗПРЕДЕЛЕНИЕ: 52,04 кв.м. застроена площ. Състои се от предверие, хол с кухненски бокс, спалня, баня с тоалетна, тераса. СЪСТОЯНИЕ: Продава се на шпакловка и замазка. Отопление на газ. ИЗЛОЖЕНИЕ: Юг, изток. Възможност за закупуване на подземно паркомясто.
Агенция АНРИ прeдлага двустаен апартамент в новострояща се гухлена сграда. АКТ 14. Луксозни общи части, асансьор.Доказан строител. МЕСТОПОЛОЖЕНИЕ: Намира се до спирки на градския транспорт, детска градина, училище. РАЗПРЕДЕЛЕНИЕ: 52,04 кв.м. застроена площ. Състои се от предверие, хол с кухненски бокс, спалня, баня с тоалетна, тераса. СЪСТОЯНИЕ: Пр... |
Брокер: Брокер
Телефон:
Мобилен: 0885980205
|
|
Брокер: Брокер
Офис : Централен
Телефон:
Мобилен: 0885980205
e-mail : info1@anri.bg
|
|
|
|
|